

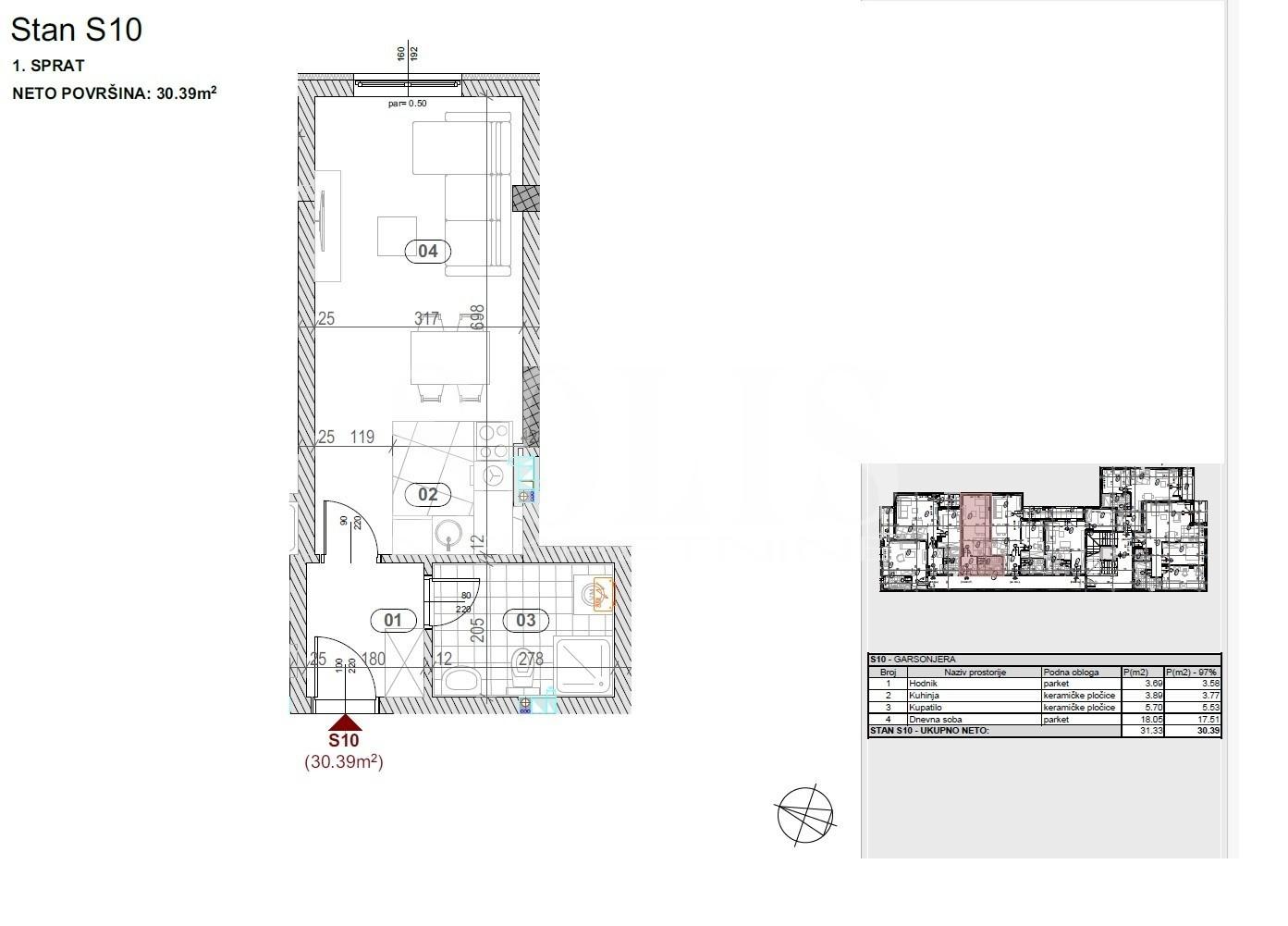
ŠIFRA: 1053486, NOVI SAD, TELEP, GARSONJERA, 30,39M2, POVRAT PDV-A...
PRODAJA STANOVA OD POUZDANOG INVESTITORA.
POVRAT PDV-A
MOGUĆNOST KUPOVINE PARKING MESTA ILI GARAŽNOG MESTA.
Želimo Vam srećnu kupovinu!!
Vladimir Mandić
tel: +381658786003
Licenca Ministarstva trgovine br.
vladimir.mandic@solis-nekretnine.rs
(Solis nekretnine, Novi Sad, upisan u Registar posrednika br. 544, tel: +381 21 520 231)
U skladu sa Zakonom o posredovanju u prometu i zakupu nepokretnosti, Uslovima poslovanja i cenovnikom usluga agencije SOLIS nekretnine, prezentacija i razgledanje ove nekretnine mogući su isključivo uz potpisan Ugovor o posredovanju.