

















































































ŠIFRA: 3004309 ...EKSKLUZIVNO POSREDOVANJE...
VILA MARINA, DIVČIBARE, CENTAR - MARINKOVIĆA KOSA, OBJEKAT ZA SMEŠTAJ GOSTIJU 383m2
+ 25m2, PLAC 617m2...
...NASTAVITE
ODLIČNO RAZRAĐEN POSAO SA TRADICIJOM OD PUNIH 16 GODINA...
...Sa zadovoljstvom omogućite svojim gostima
da punim plućima udišu blagotvorni vazduh, u miru i spokoju, okruženi četinarima...
Uživajte ili pružite priliku drugima da
uživaju na nadmorskoj visini od oko 1.000m, a u čarima jedne od najlepših
planina Srbije i popularnog turistističkog odredišta, na kome se susreću
razigrani vetrovi vile Razvigore, koji duvaju iz Panonije, sa Karpata i
Mediterana, čineći Divčibare na planini Maljen vazdušnom banjom.
Oglašavamo prodaju uknjižene vikend kuće za
komercijalno korišćenje, spratnosti Su+P+Pk, gostima poznate Vile Marina, u centru
Divčibara.
Okružena četinarskom šumom od koje vazduh oko
Vas miriše i lekovit je, nalazi se na Marinkovića kosi, 10-ak minuta hoda od
glavne raskrsnice ovog planinsko-turističkog mesta.
Odakle god dolazili (iz Novog Sada, Beograda,
drugih delova naše lepe Srbije…), prilaz je asfaltni, dok poslednjih oko 350m
predstavlja utabani, makadamski put, do ponovnog asfaltiranja nakon infrastrukturnih
radova.
Udaljena
je oko 130km od centra Beograda (oko 2h vožnje)
i manje od 200km od centra Novog Sada (oko 2,5h vožnje).
Vila Marina je objekat trajnog karaktera, građena
od čvrstih materijala, uz svu građevinsku neophodnu dokumentaciju, sa visokim
kvalitetom materijala i radova.
Useljena je i stavljena u funkciju dočeka
gostiju 2009. godine.
Korišćeni su materijali i boje kako bi se
uklopila u prirodno okruženje, sa kojim čini celinu.
Odlično je, svakodnevno, održavana, uz stalno
inoviranje, u skladu sa potrebama gostiju.
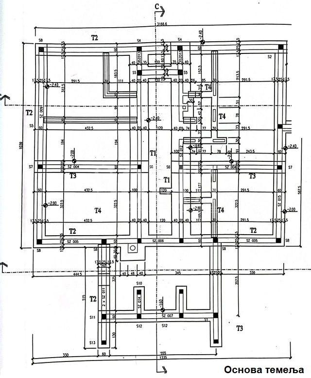
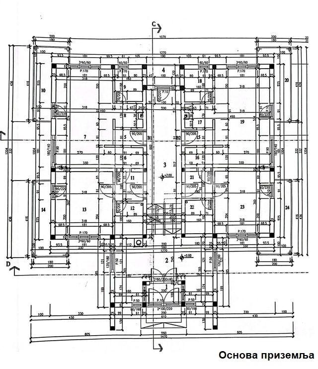
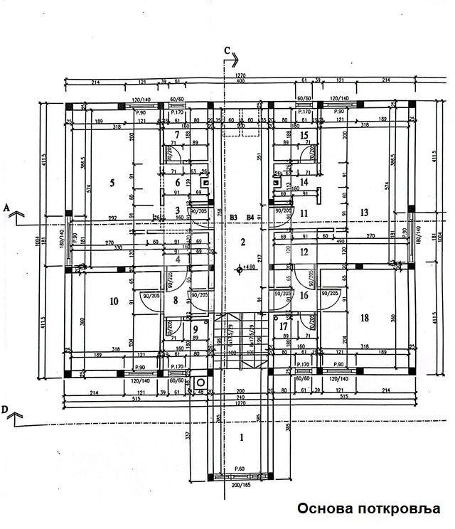
U suterenu, prizemlju i potkrovlju, nalaze se
smeštajni kapaciteti za goste, među kojima je mnogo onih koji se već godinama
rado vraćaju, ukupne neto površine 383m2, pomoćne prostorije u službi posla (vešeraj,
prostorija za zagrevanje objekta, ostave...), kao i prostorije za stanovanje
domaćina, koji su uvek u službi gostiju, površine 25m2.
Smeštajne kapacitete čine: 5 apartmana i 5 soba,
sa ukupno 33 ležaja.
Sve smeštajne jedinice opremljene su
kupatilom.
Objekat je kategorisan kao kuća za odmor sa **** (sobe sa ***, a apartmani sa ****) i zadovoljava stroge uslove nadležnog ministrarstva
(građevinske i formalne papirološke) za korišćenje vaučera za odmor u Srbiji.
Plac je površine 617m2, pod blagim nagibom, sa
urednim travljakom i cvećem, kao i sadržajima za decu i terasom za uživanje uz
piće, pripremu roštilja, čitanje omiljene knjige...
U neposrednoj blizini su svi sadržaji koje
nudi središnji deo turističkog centra, zatim skijalište, planinarske i
biciklističke staze...
Posao dočekivanja gostiju, na zadovoljstvo
domaćina i gostiju, traje već 16 godina, uz odličan marketinški, internet
nastup, kao i po preporuci zadovoljnih gostiju.
Su+P+Pk, nekoliko terasa, recepcija, etažno
grejanje na pelet sa novim kotlom, voda iz javnog vodovoda, trofazna struja,
kanalizacija, besplatan parking za goste na uličnom parkingu...
Vilu Marina moguće je pogledati u terminu koji
Vama odgovara, uz raniju najavu i razgovor sa agentom.
Rado
ću sa Vama podeliti dodatne informacije, organizovati gledanje ove kuće za
odmor i smeštaj gostiju i maksimalno olakšati proces njene kupovine.
KONTAKT:
Marko Petrović, direktor prodaje, licenca br. 3503, mob: +38163567104. (Solis
nekretnine, Novi Sad, upisan u Registar posrednika br. 544, tel: +38121520231)
Marko Petrović speaks English, говорить по русски
tel: +38163567104
Licenca Ministarstva trgovine br. 3503
marko.petrovic@solis-nekretnine.rs
(Solis nekretnine, Novi Sad, upisan u Registar posrednika br. 544, tel: +381 21 520 231)
U skladu sa Zakonom o posredovanju u prometu i zakupu nepokretnosti, Uslovima poslovanja i cenovnikom usluga agencije SOLIS nekretnine, prezentacija i razgledanje ove nekretnine mogući su isključivo uz potpisan Ugovor o posredovanju.