





ŠIFRA:1052758. NOVI
SAD, ADICE, JEDNOIPOSOBAN STAN, 40 m2.
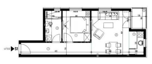
Novo u ponudi!
Predstavljamo vam jednoiposoban stan u izgradnji, pouzdanog
i proverenog investitora, pozicioniran na prvom spratu.
Stan sadrži ulazni hodnik, dnevni boravak, kuhinju sa
trpezarijom, spavaću sobu, kupatilo sa tuš kabinom i terasu.
Ulazna vrata sigurnosna, sobna vrata medijapan, ugradne
sanitarije, keramika premijum klase, PVC Rehau, kaljeno staklo na terasama,
energetski pasoš.
Grejanje je podno, svaki stan ima sopstveni elektro kotao.
Mogućnost kupovine parking mesta.
Ukoliko ste u potrazi za pravom porodičnom nekretninom ili
stanom u svrhu investicije, molim vas pozovite kontakt, radi više detalja ili
prezentacije.
KONTAKT: Katarina
Mutabdžija, direktor prodaje, br. licence 4108, mob:+381631775472. (Solis nekretnine, Novi Sad, upisan u
Registar posrednika br. 544, tel: +38121520231)
Katarina Mutabdžija
tel: +381631775472
Licenca Ministarstva trgovine br. 4108
katarina.mutabdzija@solis-nekretnine.rs
(Solis nekretnine, Novi Sad, upisan u Registar posrednika br. 544, tel: +381 21 520 231)
U skladu sa Zakonom o posredovanju u prometu i zakupu nepokretnosti, Uslovima poslovanja i cenovnikom usluga agencije SOLIS nekretnine, prezentacija i razgledanje ove nekretnine mogući su isključivo uz potpisan Ugovor o posredovanju.