





ŠIFRA:1052814. NOVI
SAD, ADICE, TROIPOSOBAN STAN, 79 m2.
Novo u ponudi!
Predstavljamo vam troiposoban stan u izgradnji, pouzdanog i
proverenog investitora, pozicioniran na trećem spratu, povučena etaža, bez
kosina.
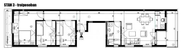
Stan sadrži ulazni hodnik, dnevni boravak, kuhinju sa
trpezarijom, tri spavaće sobe, kupatilo sa tuš kabinom i dve terase.
Ulazna vrata sigurnosna, sobna vrata medijapan, ugradne
sanitarije, keramika premijum klase, PVC Rehau, kaljeno staklo na terasama,
energetski pasoš.
Grejanje je podno, svaki stan ima sopstveni elektro kotao.
Parking u ceni stana.
Ukoliko ste u potrazi za pravom porodičnom nekretninom ili
stanom u svrhu investicije, molim vas pozovite kontakt, radi više detalja ili
prezentacije.
KONTAKT: Katarina
Mutabdžija, direktor prodaje, br. licence 4108, mob:+381631775472. (Solis nekretnine, Novi Sad, upisan u
Registar posrednika br. 544, tel: +38121520231)
Katarina Mutabdžija
tel: +381631775472
Licenca Ministarstva trgovine br. 4108
katarina.mutabdzija@solis-nekretnine.rs
(Solis nekretnine, Novi Sad, upisan u Registar posrednika br. 544, tel: +381 21 520 231)
U skladu sa Zakonom o posredovanju u prometu i zakupu nepokretnosti, Uslovima poslovanja i cenovnikom usluga agencije SOLIS nekretnine, prezentacija i razgledanje ove nekretnine mogući su isključivo uz potpisan Ugovor o posredovanju.