























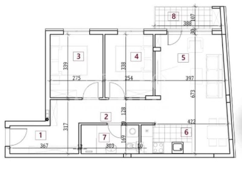
ŠIFRA: 1048302 NOVI SAD, BULEVAR, UKNJIŽEN TROSOBAN STAN 69 M2
Uknjižen trosoban
neuseljavan stan u kvalitetnoj novogradnji u blizini Bulevara. Drugi sprat,
lift, terasa, grejanje na toplotne pumpe.
Objekat je
opreman vrhunskim materijalima najvišeg kvaliteta. Svaki stan ima nezavisno
grejanje i troškove plaća isključivo po potrošnji. Spoljna stolarija je drvo –
aluminijum, troslojna stakla, kvalitetne sanitarije, italijanska keramika prve
klase, tuš kabine od kaljenog stakla, ulazna sigurnosna vrata sa visokim
stepenom zaštite, podovi – tarket prve klase, zajednički prostor u zgradi –
stepenište je obloženo prirodnim granitom i zidnim drvenim oblogama, što ovaj
objekat čini “ MODERNOM PALATOM” Svaki stan poseduje karticu za struju (
hotelski sistem), interfon ima opciju povezivanja na aplikaciju preko
telefona.
KONTAKT: Marko Petrović, direktor prodaje, licenca br. 3503, mob: +38163567104. (Solis nekretnine, Novi Sad, upisan u Registar posrednika br. 544, tel: +38121520231)
Marko Petrović speaks English, говорить по русски
tel: +38163567104
Licenca Ministarstva trgovine br. 3503
marko.petrovic@solis-nekretnine.rs
(Solis nekretnine, Novi Sad, upisan u Registar posrednika br. 544, tel: +381 21 520 231)
U skladu sa Zakonom o posredovanju u prometu i zakupu nepokretnosti, Uslovima poslovanja i cenovnikom usluga agencije SOLIS nekretnine, prezentacija i razgledanje ove nekretnine mogući su isključivo uz potpisan Ugovor o posredovanju.