







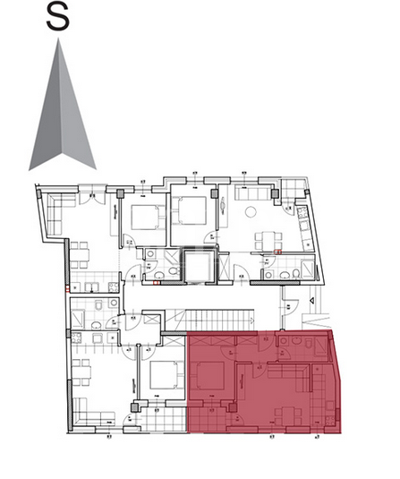
Šifra: 1053327... NOVI SAD, PODBARA, DVOSOBAN STAN , 39,10 M2...
Oglašavamo prodaju dvosobnog stana od 39,10 m2 projektovane površine u izgradnji na lokaciji Podbara. Nekretnina ima odličan raspored s obzirom na malu kvadraturu. Stan je smešten na prizemlju objekta i ukupno pet etaža. Orijentacija stana je ulica - JUG. Sama zgrada je projektovana da ima kvalitetnu izolaciju i fasadnu ciglu na određenim delovina kao fasadu. Grejanje je planirano da bude na gas, naravno sa gasnom podstanicom. Prednost kupovine ove nekretnine su niski troškovi grejanja koji se plaćaju samo u grejnoj sezoni, mogućnost povrata PDV - a. MOGUĆNOST KUPOVINE PARKING MESTA - 10.000 E, GARAŽNO MESTO - 20.000 E... Za više detalja pozovite....
Gabriela Orosi magyarul beszélek
tel: +381637241177
Licenca Ministarstva trgovine br. 1538
gabriela.orosi@solis-nekretnine.rs
(Solis nekretnine, Novi Sad, upisan u Registar posrednika br. 544, tel: +381 21 520 231)
U skladu sa Zakonom o posredovanju u prometu i zakupu nepokretnosti, Uslovima poslovanja i cenovnikom usluga agencije SOLIS nekretnine, prezentacija i razgledanje ove nekretnine mogući su isključivo uz potpisan Ugovor o posredovanju.