



















ŠIFRA: 1053420, NOVI SAD, TELEP JUŽNI, PETOSOBAN, DUPLEX, LUX, 147M2,…
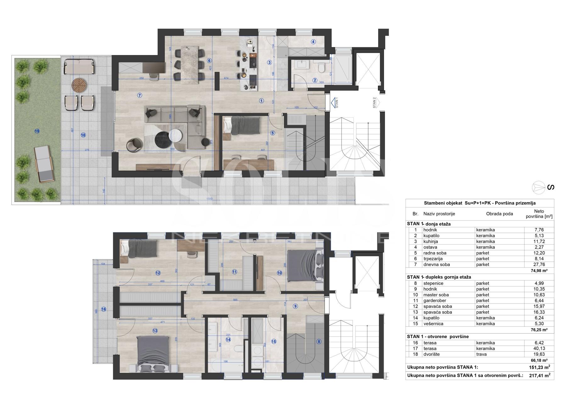
Oglašavamo na prodaju lux duplex stan u novoj zgradi na Južnom Telepu. U blizini stana nalazi se osnovna škola, vrtić, prodavnice i ostali sadržaj neophodan za ugodan živor jedne porodice. Velika prednost ovog stana je što je u cenu uračunata i garaža od 35m2 gde mogu da se parkiraju dva automobile. Na donjoj etaži se nalazi prostrana dnevna soba sa kuhinjom i trpezarijom i izlazom na dvorište, spavaća soba i kupatilo. Na gornjoj etaži nalaze se tri spavaće sobe kupatilo i terasa. Kroz ceo stan razvučeno je podno grejanje. U prirodi je stan veći nego što je upisano u katastru, što možeti videti na skici koja je među slikama. U koliko vam se dopada ovaj stan slobodno me pozovite rado ću vam ga pokazati.
KONTAKT: Lazar Jovanović, agent
prodaje, licenca br.5640 tel: +381665217187
(Solis nekretnine, Novi Sad, upisan u Registar posrednika br. 544, tel: +38121520231
)
Lazar Jovanović
tel: +381665217187
Licenca Ministarstva trgovine br. 5640
lazar.jovanovic@solis-nekretnine.rs
(Solis nekretnine, Novi Sad, upisan u Registar posrednika br. 544, tel: +381 21 520 231)
U skladu sa Zakonom o posredovanju u prometu i zakupu nepokretnosti, Uslovima poslovanja i cenovnikom usluga agencije SOLIS nekretnine, prezentacija i razgledanje ove nekretnine mogući su isključivo uz potpisan Ugovor o posredovanju.