SOLIS - TO JE IME ZA VAŠ DOM!

Stan, Garsonjera, 27m2, Novi Sad, Telep - severni

Telep - severni Garsonjera... sprat 2 od 2 GS64.800 € + 3% posrednička naknada
2.400,00 EUR/m2

Detaljan opis oglasa

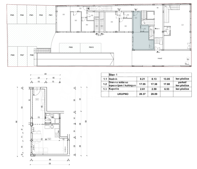
ŠIFRA:1052219. NOVI SAD, SEVERNI TELEP, GARSONJERA 27 m2.

Garsonjera 27 m² – Severni Telep, Novi Sad – U izgradnji

Na prodaju moderna garsonjera površine 27 m², smeštena u kvalitetnoj novogradnji na atraktivnoj lokaciji na Severnom Telepu, u neposrednoj blizini Bulevara Patrijarha Pavla.

Objekat se gradi uz upotrebu savremenih materijala i visok standard kvaliteta, što garantuje dugotrajnost, funkcionalnost i komfor stanovanja. Idealna prilika za investiciju, život ili izdavanje.

Lokacija: Severni Telep – miran kraj u razvoju, blizu svih važnih sadržaja

Rok završetka radova: mart.2026. godine.

KONTAKT: Goran Menković, agent prodaje, mob:+381603260012. (Solis nekretnine, Novi Sad, upisan u Registar posrednika br. 544, tel: +38121520231
Informacije o posredovanju

Goran Menković
tel: +381603260012
Licenca Ministarstva trgovine br.
goran.menkovic@solis-nekretnine.rs

(Solis nekretnine, Novi Sad, upisan u Registar posrednika br. 544, tel: +381 21 520 231)


U skladu sa Zakonom o posredovanju u prometu i zakupu nepokretnosti, Uslovima poslovanja i cenovnikom usluga agencije SOLIS nekretnine, prezentacija i razgledanje ove nekretnine mogući su isključivo uz potpisan Ugovor o posredovanju.