





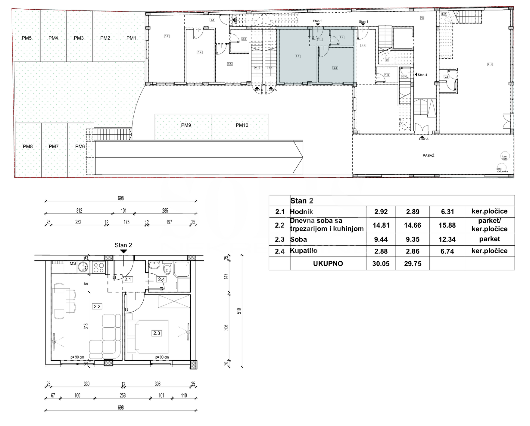
ŠIFRA:1052200. NOVI SAD, SEVERNI TELEP, JEDNOIPOSOBAN 30 m2.
Jednoiposoban 30 m² – Severni Telep, Novi Sad – U izgradnji.
Na prodaju moderna garsonjera površine 30 m², smeštena u
kvalitetnoj novogradnji na atraktivnoj lokaciji na Severnom Telepu, u
neposrednoj blizini Bulevara Patrijarha Pavla.
Objekat se gradi uz upotrebu savremenih materijala i visok
standard kvaliteta, što garantuje dugotrajnost, funkcionalnost i komfor
stanovanja. Idealna prilika za investiciju, život ili izdavanje.
Lokacija: Severni Telep – miran kraj u razvoju, blizu svih važnih sadržaja
Rok završetka radova: mart.2026. godine.
KONTAKT: Goran Menković, agent prodaje, mob:+381603260012. (Solis nekretnine, Novi Sad, upisan u Registar posrednika br. 544, tel: +38121520231)
Goran Menković
tel: +381603260012
Licenca Ministarstva trgovine br.
goran.menkovic@solis-nekretnine.rs
(Solis nekretnine, Novi Sad, upisan u Registar posrednika br. 544, tel: +381 21 520 231)
U skladu sa Zakonom o posredovanju u prometu i zakupu nepokretnosti, Uslovima poslovanja i cenovnikom usluga agencije SOLIS nekretnine, prezentacija i razgledanje ove nekretnine mogući su isključivo uz potpisan Ugovor o posredovanju.