



































ŠIFRA: 1053563…PRODAJA STANOVA, PETROVARADIN, DVOIPOSOBAN 46m2
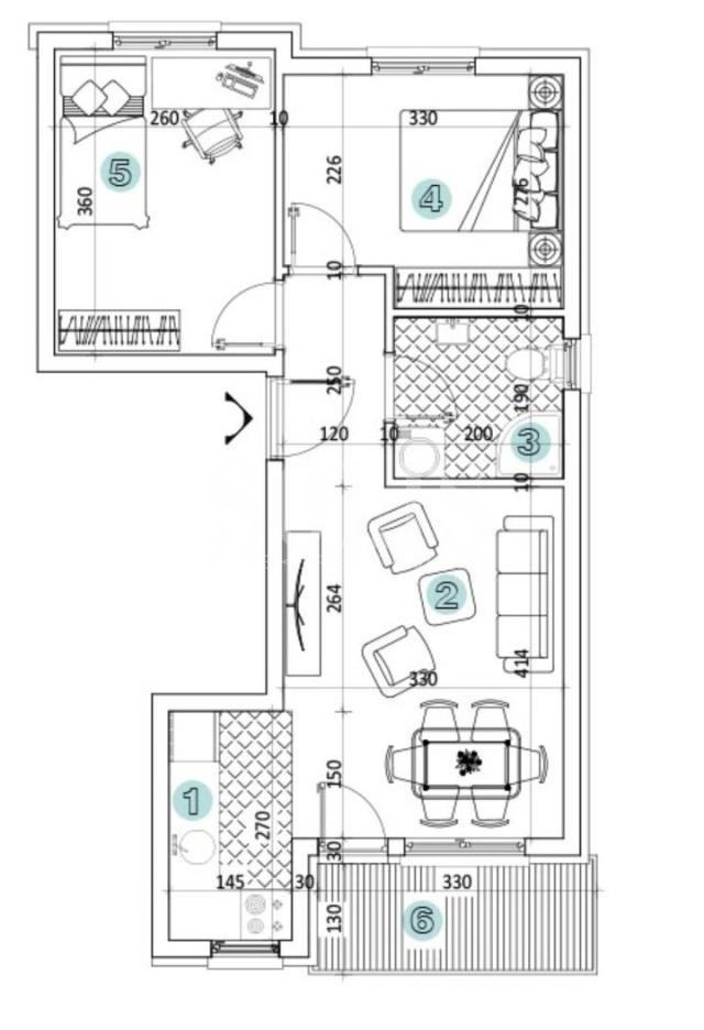
Predstavljamo vam prijatan i funkcionalan dvoiposoban stan od 46 m², smešten na 1. spratu od 2 u kvalitetnoj novogradnji iz 2023. godine.
Stan je odlično organizovan i omogućava maksimalnu iskorišćenost prostora: ulazni hodnik, prostran dnevni boravak sa kuhinjom, 2 spavaće sobe, kupatilo, terasa (oko 3m²).
Zajednički parking za stanare, podno grejanje, potpuno nov nameštaj, dvostrana orijentacija, veoma mali računi - su samo neki od mnogih prednosti ovog stana.
Stan se trenutno izdaje za 300e mesečno, i stanar bi voleo da ostane tako da je ovo odlična prilika za investiciju.
Jovan Krasnić
tel: +381643734340
Licenca Ministarstva trgovine br.
jovan.krasnic@solis-nekretnine.rs
(Solis nekretnine, Novi Sad, upisan u Registar posrednika br. 544, tel: +381 21 520 231)
U skladu sa Zakonom o posredovanju u prometu i zakupu nepokretnosti, Uslovima poslovanja i cenovnikom usluga agencije SOLIS nekretnine, prezentacija i razgledanje ove nekretnine mogući su isključivo uz potpisan Ugovor o posredovanju.